
Ôm trọn không gian khoáng đạt của rừng dừa nước tự nhiên, La Palma mang dáng dấp của “viên ngọc xanh” đầy mê hoặc giữa đa tầng thiên nhiên độc bản. Đan cài giữa hơi thở thiên nhiên căng tràn sức sống và và nhịp điệu sôi động nơi phố thị, La Palma lưu dấu ấn thượng lưu bên bến du thuyền trước sóng nước thềm nhà, nơi phản chiếu những giấc mơ kỳ vĩ trong tầm tay.

MẪU BT1 - 3 TẦNG
Căn điển hình
FORESTSIDE VILLA
01
Phòng
đa
năng
04
Phòng
ngủ
05
WC
Diện tích khu đất
260 (m2)
Tổng diện tích sàn xây dựng
340,98 (m2)
Diện tích sân vườn
154,98 (m2)

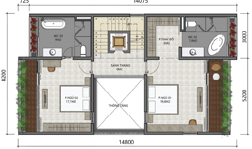
Mặt bằng tầng trệt
Mặt bằng tầng 01
Mặt bằng tầng 02
Mặt bằng tầng kỹ thuật
*Thông tin và hình ảnh chỉ mang tính chất minh họa, chỉ đúng tại thời điểm phát hành, và có thể thay đổi, điều chỉnh theo thực tế mà không cần báo trước
MẪU BT1A - 3 TẦNG
Căn điển hình
Forestside Villa
01
Phòng
đa
năng
04
Phòng
ngủ
05
WC
Diện tích khu đất
260 (m2)
Tổng diện tích sàn xây dựng
340,98 (m2)
Diện tích sân vườn
154,28 (m2)

Mặt bằng tầng trệt
Mặt bằng tầng 01
Mặt bằng tầng 02
Mặt bằng tầng kỹ thuật
*Thông tin và hình ảnh chỉ mang tính chất minh họa, chỉ đúng tại thời điểm phát hành, và có thể thay đổi, điều chỉnh theo thực tế mà không cần báo trước
MẪU BT2 - 3 TẦNG
Căn điển hình
Forestside Villa
01
Phòng
đa
năng
04
Phòng
ngủ
05
WC
Diện tích khu đất
300 (m2)
Tổng diện tích sàn xây dựng
340,98 (m2)
Diện tích sân vườn
194,28 (m2)

Mặt bằng tầng trệt
Mặt bằng tầng 01
Mặt bằng tầng 02
Mặt bằng tầng kỹ thuật
*Thông tin và hình ảnh chỉ mang tính chất minh họa, chỉ đúng tại thời điểm phát hành, và có thể thay đổi, điều chỉnh theo thực tế mà không cần báo trước
MẪU BT2A - 3 TẦNG
Căn góc
Forestside Villa
01
Phòng
đa
năng
01
Phòng
đọc
04
Phòng
ngủ
05
Phòng
tắm
Diện tích khu đất
178 (m2)
Tổng diện tích sàn xây dựng
302,7 (m2)
Diện tích sân vườn
75,3 (m2)

Mặt bằng tầng trệt
Mặt bằng tầng 01
Mặt bằng tầng 02
Mặt bằng tầng kỹ thuật
*Thông tin và hình ảnh chỉ mang tính chất minh họa, chỉ đúng tại thời điểm phát hành, và có thể thay đổi, điều chỉnh theo thực tế mà không cần báo trước
MẪU BT2 - CĂN GÓC
Căn góc
Forestside Villa
01
Phòng
đa
năng
04
Phòng
ngủ
05
WC
Diện tích khu đất
371,54 (m2)
Tổng diện tích sàn xây dựng
340,98 (m2)
Diện tích sân vườn
75,3 (m2)

*Thông tin và hình ảnh chỉ mang tính chất minh họa, chỉ đúng tại thời điểm phát hành, và có thể thay đổi, điều chỉnh theo thực tế mà không cần báo trước
MẪU BT5 - 2 TẦNG
Căn điển hình
Forestside Villa
01
Phòng
đa
năng
04
Phòng
ngủ
05
WC
Diện tích khu đất
312 (m2)
Tổng diện tích sàn xây dựng
315,65 (m2)
Diện tích sân vườn
175,3 (m2)

Mặt bằng tầng trệt
Mặt bằng tầng 01
Mặt bằng tầng kỹ thuật
*Thông tin và hình ảnh chỉ mang tính chất minh họa, chỉ đúng tại thời điểm phát hành, và có thể thay đổi, điều chỉnh theo thực tế mà không cần báo trước
MẪU BT5G - 2 TẦNG
Căn góc
Forestside Villa
01
Phòng
đa
năng
04
Phòng
ngủ
05
WC
Diện tích khu đất
407,81 (m2)
Tổng diện tích sàn xây dựng
326,02 (m2)
Diện tích sân vườn
264,74 (m2)

Mặt bằng tầng trệt
Mặt bằng tầng 01
Mặt bằng tầng kỹ thuật
*Thông tin và hình ảnh chỉ mang tính chất minh họa, chỉ đúng tại thời điểm phát hành, và có thể thay đổi, điều chỉnh theo thực tế mà không cần báo trước